Fotogalerie
Die städtebauliche und architektonische Gestaltung von Gebäuden mit verklebten Lamellen ermöglicht eine hohe Wohnqualität. Besonders hervorzuheben ist die größere Anzahl an Lamellen innerhalb der Anlage, die eine geringe Anzahl an Wohnungen pro Lamelle ermöglicht. Auf diese Weise können zukünftige Mieter mit mehr Wohnkomfort, Zweckmäßigkeit, Intimität sowie einer einfacheren Nutzung des Objektinhalts rechnen.
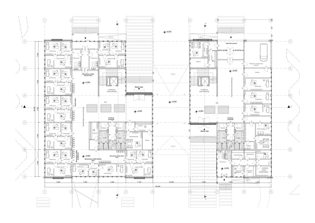
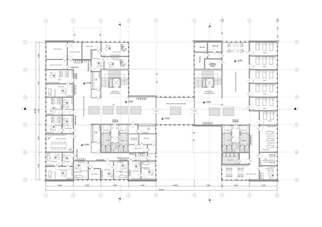
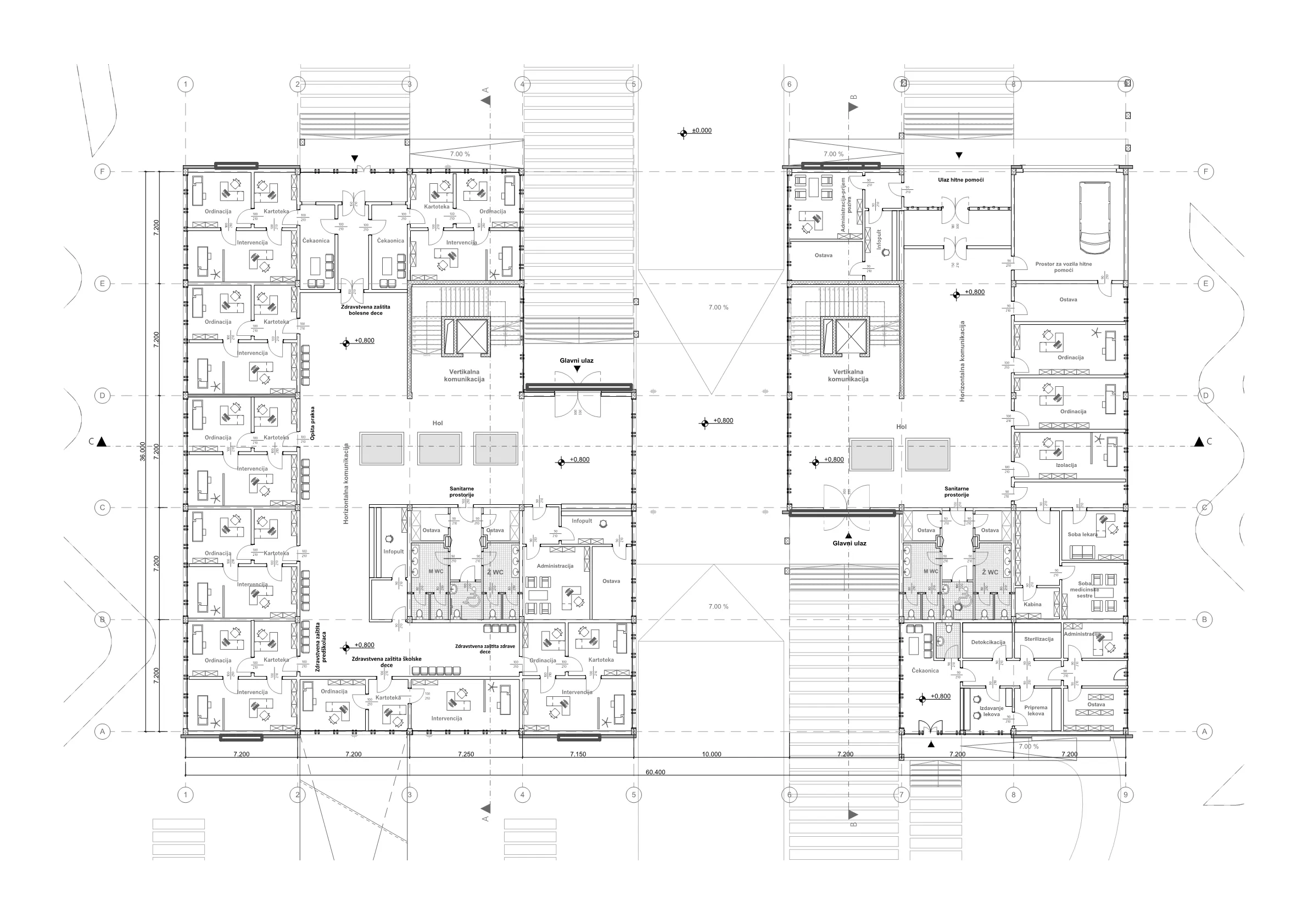
Gemeindegesundheitszentrum
Aufgrund der Anforderungen an die Barrierefreiheit weist das Gebäude maximal P+1 auf.Das Gebäude des Gesundheitszentrums besteht aus zwei Blöcken (Block A – P+1, Block B – Höhe).P+1), verbunden durch einen Verbindungsraum.Das Gebäude ist als freistehendes Gebäude mit Zugangsmöglichkeit von allen vier Seiten konzipiertSeiten.
Einfamilienhaus
Wir präsentieren Ihnen einen detaillierten Plan eines Einfamilienhauses von 136 Quadratmetern mit einem Swimmingpool und einem schönen Garten. Sein Hauptvorteil ist ein funktionales Interieur, das für die Bedürfnisse einer vierköpfigen Familie konzipiert ist, und es gibt einen geräumigen Dachboden zur Aufbewahrung von Dingen. Das Das Haus ist die perfekte Wahl für diejenigen, die eine klassische Bauweise mit modernen Akzenten bevorzugen. Der Wohnraum befindet sich im Erdgeschoss des Hauses, das von einem geräumigen Wohnzimmer dominiert wird, das mit dem Esszimmer, der Küche und der Speisekammer verbunden ist. Vor ihr Es gibt ein Elternschlafzimmer mit separatem Raum für Garderobe und WC sowie zwei Kinderzimmer und ein Badezimmer..





















